ARCHITECTURE
PHOTOGRAPHIE
CONTACT
PORTFOLIO
ARCHITECTURE
PHOTOGRAPHIE
CONTACT
PORTFOLIO
Romane Sonzogni
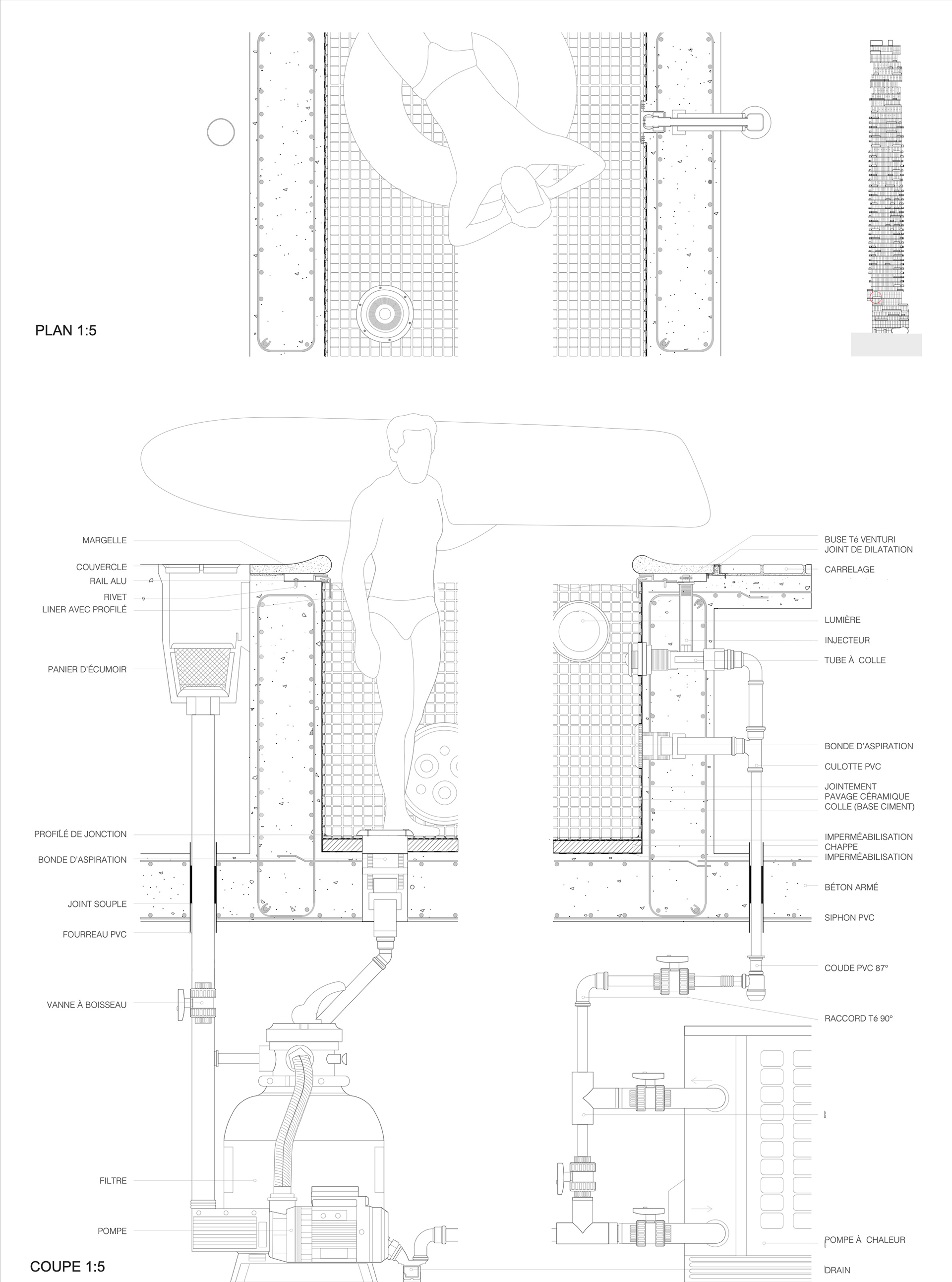
DÉTAILS CONSTRUCTIFS
56 LEONARD STREET, New-York City / Herzog & De Meuron
ENCADRÉ PAR Julien Boitard ; Christophe wilke
NeW-York City, États-Unis
3ème année - 2023 - Ecole Nationale Supérieure d’Architecture de Versailles (78)
MENU
↑
Back to Top